ขายบ้านเดี่ยว3ชั้นย่านนาคนิวาสลาดพร้าว71โชคชัย4 ใกล้เลียบด่วน MRTลาดพร้าว71 สตรีวิทยาเหมาะทำโฮมออฟฟิศ

เซ็นทรัลลาดพร้าว ลาดพร้าวตอนต้น ห้าแยกลาดพร้าว โชคชัยร่วมมิตร 095-xXx-xXXx

ราคาขาย 29,500,000 บาท

(5.0)

รายละเอียด

ขายบ้านเดี่ยว3ชั้นย่านนาคนิวาสลาดพร้าว71โชคชัย4 ใกล้เลียบด่วน MRTลาดพร้าว71 สตรีวิทยาเหมาะทำโฮมออฟฟิศ

ราคาขาย 29,500,000 บาท ( ค่าใช้จ่ายวันโอนฝ่ายละครึ่ง )
ที่ตั้ง ถนนนาคนิวาส ซอยนาคนิวาส แขวงลาดพร้าว เขตลาดพร้าว กรุงเทพมหานคร 10230

ติดต่อ : คุณภัสพงณ์ 063-409-8164
Line : deedaa23

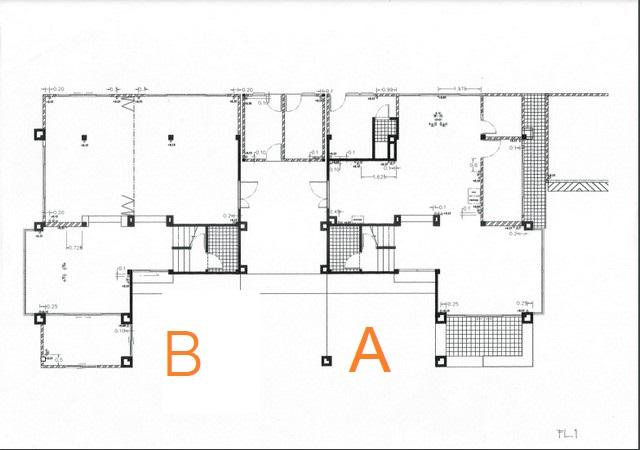
เนื้อที่ 110 ตารางวา พื้นที่ใช้สอย 600 ตารางเมตร จำนวน 3 ชั้น 2 หลัง 11 ห้องทำงาน 6 ห้องน้ำ จอดรถ 8-10 คัน

ตึกA
- ชั้น1 มี 1 ห้องโถง 1ห้องน้ำ
- ชั้น2 มี 3ห้องทำงาน 1ห้องน้ำ
- ชั้น3 มี 3ห้องทำงาน 1ห้องน้ำ

ตึกB
- ชั้น1 มี 1 ห้องโถง 1ห้องน้ำ
- ชั้น2 มี2 ห้องทำงาน 1ห้องน้ำ
- ชั้น3 มี 3ห้องทำงาน 1ห้องน้ำ

อยู่ติดถนนนาคนิวาส เข้า-ออกได้จากซอยลาดพร้าว 71 ใกล้ทางด่วนรามอินทรา-อาจณรงค์
ใกล้ Central Eastville, Crystal Park, CDC, Tesco Lotus ลาดพร้าว วังหิน, Central ลาดพร้าว รร.สตรีวิทยา 2

เหมาะทำโฮมออฟฟิศ

ราคาขาย 29,500,000 บาท ( ค่าใช้จ่ายวันโอนฝ่ายละครึ่ง )
ที่ตั้ง ถนนนาคนิวาส ซอยนาคนิวาส แขวงลาดพร้าว เขตลาดพร้าว กรุงเทพมหานคร 10230

ติดต่อ : คุณภัสพงณ์ 063-409-8164
Line : deedaa23

PL. Real Estate Broker
http://www.kaibaanteedin.com
บริการรับฝากขาย คอนโด บ้าน ที่ดิน อสังหาริมทรัพย์ทุกชนิด
 

แผนที่

-